小田急相模原駅賃貸物件一覧

建物 142 棟 部屋 188
表示棟数:

フレンドポート相模大野 【05月02日更新】

敷金ゼロ

賃料 3.5万円 管理費 15,000円
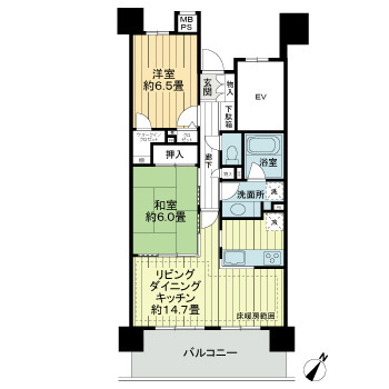
間取り 1K 面積 19.44m2
住所 神奈川県相模原市南区豊町17-24 築年月 1991年3月
交通

小田急小田原線相模大野駅』徒歩14

小田急江ノ島線東林間駅』徒歩22

小田急小田原線小田急相模原駅』徒歩21

間取り図 階数 間取り 面積 賃料 管理費 敷金 礼金 お気に入り お問合わせ
1K 1階 1K 19.44m2 3.5万円 15,000円 0.0ヶ月 1.0ヶ月
全ての空室情報を表示 その他-2 閉じる
建物 142棟中  113~113棟表示
お気に入りに追加しました
お気に入りを解除しました
検索条件を保存しました
現在の検索条件
小田急相模原駅
こだわりの条件
小田急相模原駅
会社情報
株式会社ネクストライフ

株式会社ネクストライフ

営業時間:10:00~18:30

0120-955-199